freischaffender Architekt in Naila-Marlesreuth
Neubau - Altbau - Anbau - Umbau - Sanierung
über 20 Jahre Erfahrung in der Planung und Bauabwicklung

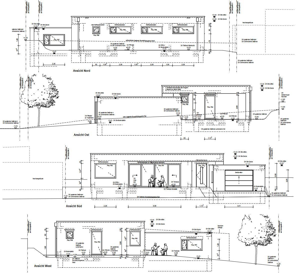
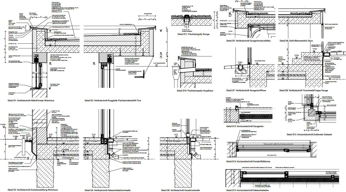
1-2 Personenhaus H in Bad Lobenstein

Zwei Kräne für ein Einfamilienhaus: Haus G am Ochsenkopf

Finanzamt Selb - Barrierefreiheit und Gebäudesicherung
Objektplanung Leistungsphasen 1 bis 8 - abgeschlossen
Bauherr: Staatliches Bauamt Bayreuth

Im Rahmen der kleinen Baumaßnahme „Barrierefreiheit und Gebäudesicherung“ am Finanzamt Selb habe ich eine rollstuhlgerechte, zweiläufige Zugangsrampe aus pulverbeschichtetem Stahl planen und umsetzen können.
Der Zuweg wurde neu gepflastert und mit einem taktilen Leitsystem versehen, welches im Besucherbereich des Gebäudeinneren fortgeführt wurde. In der Baugrube der Rampenfundamente wurde die historische Bruchstein-Kelleraußenwand vorbetoniert, drainiert und mit einer Bauwerksabdichtung versehen.

Als Bodenbelag wurden rutschhemmende Gitterroste verwendet. Die beidseitigen Edelstahlhandläufe verlaufen auf barrierefreier Greifhöhe.

Die ursprüngliche Eingangstreppe wurde abgebrochen und durch einen neuen, um 90° gedrehten Treppenlauf ersetzt. Ein neuer Granitbelag mit rutschhemmender Oberfläche wurde verlegt, sowie kontrastierende Sicherheitstrittkanten als dunkle Natursteinintarsien.

Die hochwertige historische Haupteingangstüre wurde aufbereitet, neu beschichtet und mit einem automatischen Drehtürantrieb mit Laserscannern versehen. Damit ist sowohl eine manuelle, öffnungsunterstützte Handbetätigung, als auch eine automatische Bedienbarkeit durch Rollstuhlfahrer über Großflächentaster möglich.

Für die Gebäudesicherheit und im Vorgriff auf die anstehende Brandschutzertüchtigung des Gebäudes wurde das bestehende Treppenhaus mit neuen Wänden und feuerhemmenden Türen gekapselt, sowie eine elektronische Zutrittskontrolle gegen unbefugtes Betreten eingebaut.

Vom Wartebereich des Windfangs aus ist nun ein uneingeschränkt mit dem Rollstuhl nutzbares, barrierefreies Besucher-WC erreichbar. Für sehbehinderte Menschen wurde eine kontrastierende Optik der weißen Keramik und der Bedienelemente zum dunklen Fliesenbelag gewählt.







